Her finder du viden om alt fra byggeteknik til processen samt inspiration til biogene materialer, formsprog og huse, der underordner sig landskabet og naturen.

Valget mellem dampbremse og dampspærre betyder meget for dit træhus. Vi kigger i denne guide på forskellene og de bedste løsninger til sommerhuse.
Læs mere
Det kan sagtens lade sig gøre at bygge et flot sommerhus på budget. Vi kigger i denne guide på de billigste materialer og de bedste steder at finde genbrug til byggeriet.
Læs mere
Bygningsreglementet strammer kravene til CO2-udledning for helårshuse i 2026. Vi kigger på hvad de nye regler betyder for dit sommerhusbyggeri.
Læs mere
Krydslamineret træ (CLT) vinder frem i det danske sommerhusbyggeri. Denne tekniske guide gennemgår konstruktionen fra fundament til tagflade og belyser de økonomiske og æstetiske valg.
Læs mere
Funkisarkitekturen er kendt for sin kompromisløse geometri og store lysindfald. I denne dybdegående guide dykker vi ned i, hvad det kræver, at tilføje en moderne tilbygning, som respekterer den historiske arv og skaber en god sammenhæng.
Læs mere
At købe en ubebygget grund er det første skridt mod ferieparadiset. I denne artikel ser vi nærmere på, hvad det kræver, at byggemodne jorden, så du undgår uforudsete udgifter undervejs.
Læs mere
Patriciervillaen er kendt for sin balance og elegance. I denne artikel ser vi på hvordan man tilføjer moderne kvadratmeter uden at ødelægge den historiske symmetri så helheden bevares gennem gennemtænkt arkitektur og materialevalg.
Læs mere
En grundig gennemgang af de to vigtigste tilladelser når du bygger i det åbne land eller i sommerhusområder. Vi ser på hvorfor de to tilladelser er forskellige, og hvordan du navigerer sikkert gennem processen hos kommunen.
Læs mere
At bo flere generationer under samme tag vinder frem lige nu. I denne artikel dykker vi ned i hvordan arkitekturen kan understøtte det sociale liv på tværs af generationer ved at skabe boliger med to kerner, hvor man er tæt på hinanden men stadig har sit eget fristed.
Læs mere
Her er en guide til hvordan vi bruger naturens egne ressourcer til at skabe moderne sommerhuse der lagrer CO2 og ældes med ynde.
Læs mere
Nordsjælland byder på nogle af landets smukkeste naturscenarier, men det kræver en særlig arkitektonisk tilgang at udnytte potentialet fuldt ud. Denne artikel guider dig gennem processen med at skabe en tilbygning, der åbner huset op mod landskabet, hvor vi ser på alt fra lokalplaner ved Esrum Sø til de mest eksklusive vinduesløsninger langs Øresund.
Læs mere
At bygge nyt med gamle materialer handler om mere end bare CO2-regnskab. Det handler om at tilføre huset en sjæl og en stoflighed som man ikke kan købe fra ny. Denne artikel ser på hvordan man bruger genbrugsmaterialer så det ser eksklusivt ud hvor vi dækker alt fra producenter og priser til de vigtige æstetiske overvejelser.
Læs mere
Det er tit de ting man ikke ser på tegningerne som koster flest penge i et byggeprojekt. Denne artikel gennemgår de skjulte faser og de udgifter man måske glemmer at tænke over når man lægger budgettet. Vi snakker om alt fra statiske beregninger og landinspektører til de irriterende gebyrer til kommunen.
Læs mere
Når man ikke må bygge mere ud på sin grund, er løsningen tit at kigge opad. Denne artikel ser på, hvordan man skaber en tagterrasse, der fungerer som en arkitektonisk tilbygning. Vi snakker om alt fra de svære regler til de mange sanselige kvaliteter, der opstår, når man flytter uderummet op i højden.
Læs mere
Mangler du et rigtigt kontor adskilt fra privatlivet? Læs vores guide om tilbygninger til hjemmearbejde med fokus på arkitektur, lys og biogene materialer.
Læs mere
Læs vores arkitektoniske manifest om at bygge mindre, men bedre. Vi dykker ned i værdier som kontekst, sanselige materialer og kunsten at skabe poesi i hverdagen.
Læs mere
Der er stor forskel på et kataloghus og et hus tegnet specifikt til dig og din grund. Vi kigger her på hvad det kræver at bygge et fritidshus i høj kvalitet i 2026. Det handler om de rigtige materialer og en planløsning der giver mening for din familie og hvordan man navigerer i reglerne uden at miste den arkitektoniske vision.
Læs mere
Det handler om materialernes ærlighed når vi taler om facaden på et sommerhus. Vi ser her på hvorfor linolie og naturmaling vinder over plastikbaserede produkter i moderne byggeri. Læs om overflader der bliver smukkere med alderen og forstå hvordan du vælger den rette behandling til træet så huset holder i generationer.
Læs mere
Et godt gulv er det man mærker i hverdagen uden at tænke over det. Det rigtige sommerhus-gulv er varmt at gå på barfodede en kold majmorgen, det ældes smukt og det er nemt at holde rent. Denne artikel gennemgår de materialer og produkter der faktisk er værd at bruge penge på.
Læs mere
Der er ved at ske et stille skift i måden vi tænker luksus i privat boligbyggeri. Det handler ikke om størrelse eller dyre overflader men om materialernes ærlighed, konstruktionens lethed og forholdet til det sted huset er placeret. Denne artikel er et forsøg på at formulere hvad det skift egentlig er og hvor det peger hen.
Læs mere
En tilbygning kan jo sagtens bygges uden arkitekt, men det er ikke det samme som at den bliver god. Denne artikel handler ikke om priser og regler – det handler om hvad en arkitekt konkret bidrager med, hvornår det bidrag er uundværligt og hvad der sker med de projekter der undlader det.
Læs mere
En tilbygning behøver ikke betyde måneder med rod og støj på din grund. Med modulopbygning flytter vi selve opførelsen ind på fabrikken og reducerer tiden på din adresse til blot få dage. I en tid hvor materialepriserne svinger voldsomt og usikkerheden er stor så giver moduler dig den tryghed du har brug for. Vi har samlet alt hvad du skal vide om fordelene ved arkitekttegnede moduler og hvordan de kan transformere din bolig på rekordtid uden at gå på kompromis med designet.
Læs mere
Verden har ændret sig markant her i maj 2026 og det samme har vores adgang til byggematerialer. Mens prisen på beton og stål stikker af så står de biogene materialer som den stabile og smukke løsning. Vi ser i denne artikel på hvordan materialer groet i jorden kan forvandle dit sommerhus eller din tilbygning til et åndbart og klimavenligt mesterværk.
Læs mere
Maj 2026 er blevet måneden hvor byggebranchen for alvor mærker effekten af den globale uro. Med Trump tilbage i Det Hvide Hus og en fastlåst situation i Hormuz-strædet er fragtrater og energipriser eksploderet. Det forplanter sig direkte i prisen på dine mursten, dit stål og dit træ. Vi har lavet en gennemgang af prisniveauet lige nu og vi giver dig de bedste råd til hvordan du håndterer usikkerheden i dit byggeprojekt.
Læs mere
Træ er ikke længere kun for sommerhuse og bjælkehytter. Det er materialet der definerer fremtidens arkitektur. Et arkitekttegnet træhus giver en frihed i designet som mursten sjældent kan matche og det skaber et indeklima der rent faktisk gør dig sundere. Vi har støvsuget markedet for viden om alt fra CLT-konstruktioner til de nyeste brandkrav.
Læs mere
Hvorfor nøjes med en standardløsning når man kan bygge et hus der er født af grundens unikke lys og dine personlige drømme? Et arkitekttegnet sommerhus er en investering i både livskvalitet og arkitektonisk arv. Vi ser her nærmere på hvordan man skaber sammenhæng mellem de rå materialer og den vilde natur og hvordan man navigerer i de tekniske krav uden at miste den kunstneriske vision.
Læs mere
Prisen på et arkitekttegnet hus er det spørgsmål der stilles tidligst og besvares dårligst. Denne artikel gennemgår hvad det faktisk koster i 2026, hvad arkitekthonoraret dækker, hvornår investeringen er meningsfuld og hvad der sker med de projekter der forsøger at spare på rådgivningen.
Læs mere
At bygge eller bygge til et sommerhus er en af de beslutninger i livet, der forandrer måden man er i naturen på. Men hvad koster en arkitekt egentlig, hvornår er det nødvendigt og hvad er det præcist man betaler for? Denne artikel gennemgår alt fra honorarstruktur og faseopdeling til sommerhusarkitekturens særlige disciplin og de regler der i sommerhusområder adskiller sig markant fra parcelhuslovgivningen.
Læs mere
At renovere et sommerhus er at kuratere pausen i sit liv. Det handler om mere end bare nye brædder; det handler om at fange lyset fra havet og duften af fyrretræ. Vi har dykket dybt ned i alt fra Sommerhuslovens stramme regler til kunsten at skabe sammenhæng mellem inde og ude.
Læs mere
Mange ser en arkitekt som en luksusudgift til en tilbygning, men reelt er at en dygtig arkitekt din bedste forsikring mod dyre fejl og ligegyldige løsninger. Vi har samlet alt hvad du skal vide om at vælge den rette arkitekt til din tilbygning. Fra det første møde til den endelige ibrugtagningstilladelse guider vi dig gennem de faser hvor din boligdrøm bliver til virkelighed. Læs med og forstå hvorfor detaljen i projektet er det der adskiller det gode byggeri fra det middelmådige.
Læs mere
At bygge til et dobbelthus er arkitekturens svar på at danse tango i et minefelt. Det kræver ikke blot en byggetilladelse men også en dyb forståelse for naboskabets psykologi og de tekniske udfordringer der opstår når to boliger deler statik og skæbne.
Læs mere
At bygge i Lyngby-Taarbæk er som at operere i et arkitektonisk hjertecenter. Her mødes 1700-tallets bindingsværk i Bondebyen med 1960’ernes modernistiske parcelhuse i Virum og de tekniske krav fra Science City Lyngby. Vi har skabt en gennemgang til dig der vil forstå hvorfor jordbundsundersøgelser ved Bagsværd Sø er afgørende og hvordan du navigerer i kommunens strikse krav til tagmaterialer og bevaringsværdier.
Læs mere
At bygge i Rudersdal Kommune kræver en særlig lydhørhed over for både det kuperede terræn og den modernistiske kulturarv, der præger området fra Furesøen til Øresundskysten. Vi har samlet alt, hvad du skal vide om lokalplanernes begrænsninger, de tekniske udfordringer ved niveauforskelle og de juridiske minefelter i forbindelse med skovbyggelinjer og søbeskyttelse. Dette er artiklen til dig, der vil forene moderne boligdrømme med Rudersdals unikke natur og arkitektur.
Læs mere
At bygge i Gentofte Kommune er en disciplin for sig. Det kræver mere end blot en tegning; det kræver en forståelse for SAVE-værdier, højdegrænseplaner og de over 150 unikke lokalplaner, der definerer vores nærområde. Vi har skrevet den definitive bibel til dig, der planlægger en tilbygning eller renovering i Gentofte, Hellerup eller Charlottenlund.
Læs mere
Når haven er for lille men drømmene er store så er løsningen ofte at bygge opad. Men at løfte taget er en af de sværeste discipliner inden for arkitekturen. Det kræver præcis viden om fundamenternes bæreevne og de strikse regler for højdegrænseplaner. Vi har skrevet en dybdegående guide til dig der vil udnytte luftkvadratmeterne og skabe en overetage med lys og udsigt uden at gå på kompromis med statikken.
Læs mere
Drømmer du om en tilbygning i Gentofte? De tekniske detaljer er ofte en stor stopklods for mange projekter. Vi undersøgte i den nye artikel hvordan CLT og mursten forenes bedst muligt. Du kan lære om alt fra fundament til brandkrav og de arkitektoniske valg der sikrede værdien af boligen.
Læs mere
Mange tilbygninger til parcelhuse ender paradoksalt med at gøre boligen mørkere, selvom de er designet til at skabe mere plads og lys. Problemet skyldes sjældent mangel på vinduer, men derimod forkert disponering af rumdybde, ensidig lysindtagelse og manglende forståelse for, hvordan dagslys bevæger sig gennem hele huset. Denne artikel forklarer de typiske arkitektoniske fejl og viser, hvordan man kan skabe tilbygninger, hvor lys, proportioner og sammenhæng mellem nyt og eksisterende hus arbejder bedre sammen.
Læs mere
Det arkitekttegnede hus koster mere end standardbyggeriet, men det er sjældent en ligefremt sammenligning fordi de to byggerier producerer fundamentalt forskellige resultater. Denne artikel gennemgår hvad der arkitektonisk og økonomisk taler for og imod at investere i gennemtænkt arkitektur til boligen.
Læs mere
Vinkelhuset og halvvalmsvillaen fra 1980'erne og 1990'erne er nu i den alder hvor ejerne enten har arvet dem eller købt dem billigt og ønsker at transformere dem til noget de er stolte af. Denne artikel viser hvad der arkitektonisk er muligt og hvad man bør undgå.
Læs mere
Denne artikel drøfter hvad der arkitektonisk og teknisk er på spil, og hvad du bør gøre inden du river væggen ned. Det store åbne køkken-alrum er den mest efterspurgte løsning i dansk boligrenovering og den løsning der faktisk oftest skuffer i hverdagen.
Læs mere
En stor familieudvidelse er ikke bare et spørgsmål om at tilføje kvadratmeter. Det er et spørgsmål om at gentænke hele huset. Denne guide viser dig hvad der arkitektonisk er på spil når et parcelhus på 120 m² skal vokse til 180 m² og hvad der afgør om resultatet bliver ét sammenhængende hjem eller to huse klistret sammen.
Læs mere
De fleste budgetoverskridelser i renoveringsprojekter er ikke tilfældige. De opstår af de samme årsager igen og igen. Denne artikel gennemgår de fem mest almindelige og dyre fælder og giver dig de konkrete redskaber til at undgå dem.
Læs mere
De bedste renoveringer handler ikke om at erstatte det eksisterende med noget nyt. De handler om at se potentialet i det der allerede er der og forstærke det. Denne artikel viser hvordan en transformation kan give et træt hus en ny identitet uden at miste det der gør det unikt.
Læs mere
Et godt sommerhus handler ikke om størrelse – det handler om præcision. Denne guide gennemgår hvad du skal vide om reglerne i sommerhusområder, de arkitektoniske greb der gør de få kvadratmeter til noget særligt og hvornår det giver mening at bygge til.
Læs mere
Tilbygning eller flytning er et af de største valg en familie kan stå over for. Svaret afhænger af mere end økonomi – det afhænger af huset, grunden, lokalplanen og ikke mindst hvad det egentlig er I mangler. Denne artikel giver dig grundlaget for at træffe det rigtige valg.
Læs mere
En god renovering starter ikke med håndværkere. Den starter med en grundig forståelse af huset, reglerne og dine egne prioriteringer. Denne guide tager dig igennem alle ti trin fra den første idé til den dag byggeriet er godkendt og afsluttet.
Læs mere
Dagslys er gratis, men det er langt fra tilfældigt. De store danske malere vidste det og som arkitekter ved vi det også: Lyset er det vigtigste redskab til at skabe et hjem, man har lyst til at opholde sig i – også på en mørk eftermiddag i november. I dette skriv ser vi nærmere på, hvordan du kan bruge lyset aktivt i din renovering eller tilbygning. Det handler ikke bare om at sætte flere vinduer i, men om at placere dem rigtigt i forhold til verdenshjørnerne og husets form. Vi guider dig igennem alt fra de oversete fordele ved ovenlysvinduer til hvordan du undgår mørke kroge i overgangen mellem nyt og gammelt.
Læs mere
Drømmer du om flere kvadratmeter? En god tilbygning handler om meget mere end bare størrelse. Det handler om at skabe balance, så det nye og det gamle smelter sammen til en naturlig helhed. Den bedste tilbygning er faktisk den der ikke ser ud som en tilbygning, men som om huset altid har været præcis sådan. I denne artikel gennemgår vi alt det du skal vide, før du sætter gang i gravemaskinerne. Vi ser på forskellige typer af tilbygninger og de arkitektoniske strategier, der sikrer at dit projekt bliver en succes – uanset om du vil ramme husets eksisterende stil eller skabe en flot kontrast.
Læs mere
Går du med tanker om at bygge om eller renovere? For mange boligejere er det også en investering i fremtiden, men det er ikke alle projekter der hæver salgsprisen lige meget. Det handler sjældent om dyre luksusløsninger, men derimod om god arkitektur og sunde beslutninger. I dette indlæg ser vi på hvad der faktisk skaber værdi når mægleren kommer på besøg. Vi ser på hvorfor en logisk planløsning ofte er vigtigere end dyre fliser, og hvordan rigtigt dagslys kan gøre dit hus langt mere attraktivt.
Læs mere
Denne artikel handler om ting du skal vide inden du går i gang med dit renoveringsprojekt. Før du river ned og bygger om er der fem ting der kan spare dig for mange penge og mange frustrationer.
Læs mere
I dette blogindlæg ser vi nærmere på forskellen mellem de to løsninger. Mens et byggefirma er eksperter i selve udførelsen og det praktiske håndværk, starter arkitekten med en grundig analyse af dit hjem og dine behov. Vi dykker ned i hvornår det bedst kan betale sig at investere i arkitektonisk rådgivning, og hvad du skal være opmærksom på hvis du vælger en totalentreprise.
Læs mere
Komplet guide til fundamentvalg for sommerhuse og tilbygninger. Vi kommer ind på de gængse muligheder med pris, holdbarhed, installation og hvor hver løsning giver bedst mening.
Læs mere
Hvem gør hvad i et tilbygningsprojekt, hvornår skal du involvere en arkitekt, og hvad sker der, hvis du springer en fase over? Denne guide gennemgår hele rådgivningskæden bag en tilbygning – og forklarer, hvor de fleste fejl faktisk opstår.
Læs mere
Bungalowen er en af dansk arkitekturs mest velproportionerede hustyper – og en af de sværeste at bygge til. Denne artikel gennemgår de særlige udfordringer ved at tilbygge en bungalow, fra det stramme formsprog og det karakteristiske pyramidetag til den hævede sokkel og materialernes rolle. Og ja – vi taler også om hvornår et anneks er et bedre svar.
Læs mere
Et arkitekttegnet hus handler ikke først og fremmest om stil, men om præcision, sted og den stemning, der opstår, når arkitekturen er tænkt hele vejen igennem. Denne artikel undersøger, hvad der gør et arkitekttegnet hus godt i en dansk sammenhæng og hvorfor kvalitet sjældent ligger i flere kvadratmeter, men næsten altid i de rigtige.
Læs mere
Hvad koster en billig tilbygning, og hvordan bygger man den rigtigt? I denne guide gennemgår jeg prisniveauer, materialer og de vigtigste valg, hvis du vil bygge en tilbygning så økonomisk som muligt – uden at det går ud over kvaliteten.
Læs mere
Det perfekte sommerhus handler ikke om at bygge flest mulige kvadratmeter, men om at skabe et fristed der gror ud af landskabet. I denne dybdegående guide tager jeg dig med bag facaden på det arkitekttegnede byggeri i 2026. Vi dykker ned i alt fra de taktiliteten i shingles og cedertræ til de benhårde fakta om bebyggelsesprocenter, kystnærhedszoner og hvad det egentlig koster at prioritere kvalitet over standardløsninger. Læs med og få opskriften på hvordan du forener wellness, bæredygtighed og tidløs arkitektur i dit kommende fristed.
Læs mere
Køkken-alrummet er husets vigtigste rum. Her ser vi på hvordan du tegner en tilbygning der ikke bare giver flere kvadratmeter men som ændrer hele familiens livskvalitet gennem lys og arkitektonisk balance.
Læs mere
Denne artikel handler om alt det økonomiske omkring det at bygge til. Hvad koster en tilbygning og hvad skal du være opmærksom på ift. dette aspekt? Læs med her.
Læs mere
Parcelhuset er danskernes foretrukne bolig, men planløsningen er ofte forældet. I denne guide ser vi på, hvordan du med en tilbygning kan bryde de faste rammer og skabe lys, luft og personlighed.
Læs mere
At bygge til et gammelt hus kræver en særlig fintfølelse. Man skal respektere det oprindelige håndværk uden at ende i et museum. I denne guide ser vi på, hvordan du forener historisk charme med moderne komfort.
Læs mere
70'er huset er den mest udbredte boligform i Danmark, men planløsningen passer sjældent til den moderne familie. I denne guide ser vi på, hvordan en tilbygning kan respektere de originale linjer og samtidig åbne huset op mod lyset og haven.
Læs mere
En udestue tilbygning handler om meget mere end bare ekstra kvadratmeter. Det handler om lyset, rumfornemmelsen og den direkte forbindelse til haven. I denne guide ser vi på hvordan du skaber et arkitektonisk løft til boligen med den rette tilbygning udestue.
Læs mere
Drømmen om et orangeri handler om lys og livskvalitet. I denne artikel dykker vi ned i de arkitektoniske greb der skiller det ægte orangeri fra en simpel udestue, og vi ser på hvordan materialer og placering skaber magi.
Læs mereGlem alt om de tunge og gammeldags karnapper. En moderne karnap er et præcist arkitektonisk indgreb der kan ændre hele dit hus. Her ser vi på former og materialer og de regler du skal kende.
Læs mere
Det kræver mere end bare en god tegning at få en byggetilladelse. Du skal have styr på alt fra det skrå højdegrænseplan til lokale servitutter og afvanding. Her får du den komplette gennemgang af reglerne kombineret med mine egne erfaringer fra sager i hele landet.
Læs mere
En grundig og realistisk gennemgang af tilbygninger til eksisterende huse – med fokus på arkitektur, proportioner, planløsning og de kompromiser, der følger med.
Læs mere
Denne artikel ser nærmere på tilbygninger med glas som hovedmateriale – ikke som en trend, men som et arkitektonisk valg med både store kvaliteter og reelle tekniske udfordringer. Vi gennemgår hvad glas kan give dig i form af lys, rumfølelse og forbindelse til omgivelserne, hvordan det fungerer i praksis i kolde og varme klimaer, hvilke konstruktionstekniske og energieffektivitetsmæssige forhold man skal kende til, samt hvordan glas kan kombineres med andre materialer for balanceret arkitektur.
Læs mere
Energioptimering i huse handler ikke kun om teknologi og besparelser – det handler om at skabe boliger, der forener høj arkitektonisk kvalitet med lavt energiforbrug og øget komfort. Gennem bevidst formgivning, strategisk materialevalg og intelligent udnyttelse af solens energipotentiale kan arkitekturen blive en aktiv medspiller i den grønne omstilling.
Læs mere
Overvejer du træbeklædning til dit sommerhus? Denne guide fra Arkitekttegnet. i 2025 gennemgår populære træsorter som gran, lærk, douglasgran og robinie, deres bæredygtighed, prisniveauer og vigtige monteringsråd. Få indblik i farvevalg, overfladebehandlinger og økonomiske overvejelser for at træffe det bedste valg til din træ tilbygning eller nybyg. Vi giver dig professionel vejledning til et smukt og holdbart resultat.
Læs mere
Forstå bebyggelsesprocenten for helårshuse og sommerhuse. Lær om reglerne i bygningsreglementet og vigtigheden af lokalplaner samt afstand til skel ved nybyg. Kontakt os for professionel rådgivning om dit byggeprojekt.
Læs mere
Drømmer du om at bygge i København? Vi guider dig gennem processen for at få en byggetilladelse. Lær om de nødvendige trin, fra forberedelse og projektbeskrivelse til indsendelse og godkendelse. Få gode råd til en effektiv proces og realiser din boligdrøm.
Læs mere
Realiser drømmen om et sommerhus i 2025! Vi guider dig gennem processen for byggetilladelse. Få overblik over bygningsreglement (BR25), ansøgning til kommunen, energi- og sikkerhedskrav samt miljø- og nabohensyn. Vi hjælper dig med at forstå de nødvendige trin for at opnå godkendelse til dit arkitekttegnede sommerhus projekt.
Læs mere
Find ud af, hvordan priserne på byggetilladelser varierer i forskellige kommuner i Danmark. Artiklen giver en liste over priserne i Københavnsområdet og Nordsjælland og udforsker de forskellige gebyrer og timepriser for byggesagsbehandling. Få klarhed over, hvor du kan få din byggesag behandlet gratis, og hvordan stramningerne i bygningsreglementet påvirker priser og behandlingstid.
Læs mere
Vi forklarer de vigtigste krav til sikkerhed, kvalitet, energi og bæredygtighed ifm. med bygningsreglementet. Lær om byggetilladelse, dispensation og konsekvenserne ved ulovligt byggeri. Få professionel rådgivning til dit næste boligprojekt.
Læs mere
Beton vs. Trækonstruktioner: Holdbarhed, komfort og bæredygtighed i dit kommende boligprojekt. Vi kigger på fordele og ulemper ved begge materialer.
Læs mere
Udforsk fordelene ved træbyggeri: bæredygtighed, energieffektivitet og sundt indeklima.
Læs mere
Dette indlæg udforsker vigtigheden af renovering og ombygning i en tid præget af ressourceknaphed og klimaforandringer. Vi ser på de bæredygtige fordele ved at bevare eksisterende bygninger frem for at rive ned, potentialet for energioptimering og den unikke arkitektoniske værdi, der opstår ved at forene nyt og gammelt. Læs om, hvordan vi kan hjælpe dig med at realisere dine ombygningsdrømme med respekt for både historie og bæredygtighed.
Læs mere
Overvejer du en tilbygning i træ? Læs om fordelene ved en trætilbygning i 2025: bæredygtighed, hurtig opførelse, godt indeklima og fleksibelt design. Vi guider dig til den bedste løsning for din boligudvidelse.
Læs mere
Drømmer du om at bygge dit eget hus? Vi giver dig her de vigtigste ting at overveje, når du skal finde den rette byggegrund. Lær om lokalplaner, infrastruktur og andre afgørende faktorer.
Læs mere
Drømmer du om charmen ved et gammelt hus? Vii guider dig igennem de vigtigste overvejelser ved køb af en ældre ejendom, fra tilstandsrapport til renoveringspotentiale og økonomi. Lær, hvordan du kan skabe dit unikke drømmehjem.
Læs mere
Drømmer du om en udestue? Lær om de forskellige typer (kold og varm), materialevalg (træ, aluminium) og vigtige planlægningsovervejelser som byggetilladelse og bebyggelsesprocent. Få inspiration til din drømmeudestue.
Læs mere
Overvejer du stråtag til dit nye hus eller anneks? Vi giver dig en kort guide til fordele (isolering, æstetik), ulemper (vedligeholdelse, brandfare) og levetid for stråtage i 2025. Få indsigt i dette traditionelle byggemateriale.
Læs mere
Står du over for valget mellem et ældre hus og et arkitekttegnet nybyg? Vi hjælper dig med at vurdere de økonomiske aspekter, fordele og ulemper ved begge muligheder. Få indsigt i renoveringsomkostninger og potentiale.
Læs mere
Står du over for valget: nybyggeri eller eksisterende hus? Vi guider dig gennem fordele og ulemper ved begge muligheder. Få nyttige spørgsmål, der hjælper dig med at træffe den rigtige beslutning for din fremtidige boligdrøm.
Læs mere
Interesseret i bæredygtigt byggeri? Vi præsenterer en guide til økologiske isoleringsmaterialer som træuld, kork og hamp. Lær om fordele for miljø og indeklima, og tag et grønnere valg til dit næste byggeprojekt.
Læs mere
Drømmer du om en træterrasse? Vi guider dig gennem planlægning, fordele og ulemper samt valg af træsorter og vigtigheden af en god underkonstruktion. Skab den perfekte udendørs oase til sommeren.
Læs mere
Drømmer du om at bygge nyt eller lave en tilbygning? Vi forklarer, hvordan du kan bruge dit eget arbejde ("muskellån") som en del af finansieringen. Lær om muligheder, begrænsninger og hvilke opgaver der er egnede.
Læs mere
Overvejer du et træhus? Vi giver dig en omfattende guide til fordele (bæredygtighed, hurtig byggetid), ulemper og de forskellige byggemetoder inden for trækonstruktion i 2025. Få indsigt før dit næste byggeprojekt.
Læs mere
Drømmer du om et udendørs køkken? Vi guider dig gennem planlægning, valg af vejrbestandige materialer og de nødvendige tilslutninger. Få svar på spørgsmål om byggetilladelse og skab det perfekte samlingspunkt i din have.
Læs mere
Står du over for valget af ny terrassebelægning? Vi kommer her med en lille guide til de mest populære materialer i 2025: træ, sten, fliser og grus. Få indsigt i deres fordele, ulemper og vedligeholdelseskrav for at træffe det bedste valg til din udendørs oase.
Læs mere
Overvejer du en hurtig og økonomisk tilbygning? Vi udforsker fordelene ved præfabrikerede tilbygninger i 2025, herunder kort byggetid, lave omkostninger og miljøvenlighed. Lær om de forskellige muligheder og få råd til dit næste byggeprojekt. Kontakt os for at finde den bedste løsning til din bolig.
Læs mere
Udforsk potentialet i træbyggeri i 2025. Få indsigt i valg af træsorter til forskellige bygningsdele, bæredygtighedsaspekter og inspirerende facadeløsninger i træ. Lær, hvordan du skaber en unik og miljøvenlig bolig med træets naturlige skønhed. Kontakt os for professionel rådgivning til dit næste byggeprojekt.
Læs mere
Dette blog-indlæg beskriver faserne indenfor boligbyggeri med særligt fokus på skitseforslag og myndighedsprojekt. Vi beskriver processen i detaljer og forklarer de forskellige trin i processen. Læs med for at få en bedre forståelse af boligbyggeri og dets faser.
Læs mere
Vi har skrevet et opdateret indlæg af gasbetonblokke som byggemateriale i 2025. Få indsigt i de økonomiske fordele, ulemper vedrørende isolering og bæredygtighed samt materialets anvendelsesmuligheder i moderne byggeri. Vi belyser både de historiske perspektiver og de aktuelle overvejelser ved valg af gasbeton til dit næste byggeprojekt. Kontakt os for professionel rådgivning.
Læs mere
Overvejer du en ombygning af dit hus? Vi guider dig gennem processen, fra de indledende overvejelser om behov og budget til byggetilladelse og valg af håndværkere. Lær hvordan en arkitekttegnet ombygning kan optimere din bolig og skabe mere plads og lys. Vi ser på fordele ved ombygning frem for flytning og giver gode råd til en vellykket proces. Kontakt os for en uforpligtende samtale om din bolig.
Læs mere
En snittegning er en af de vigtigste og mest grundlæggende tegninger i arkitektur, som viser bygningens rumlige struktur og giver et unikt indblik i dens konstruktion. Artiklen guider dig igennem, hvad en snittegning er, hvordan du læser den, og hvordan den adskiller sig fra andre arkitekttegninger. Du vil også lære om, hvordan en arkitekt tegner en snittegning, og hvordan du kan bruge denne viden til bedre at forstå arkitektens tegninger.
Læs mere
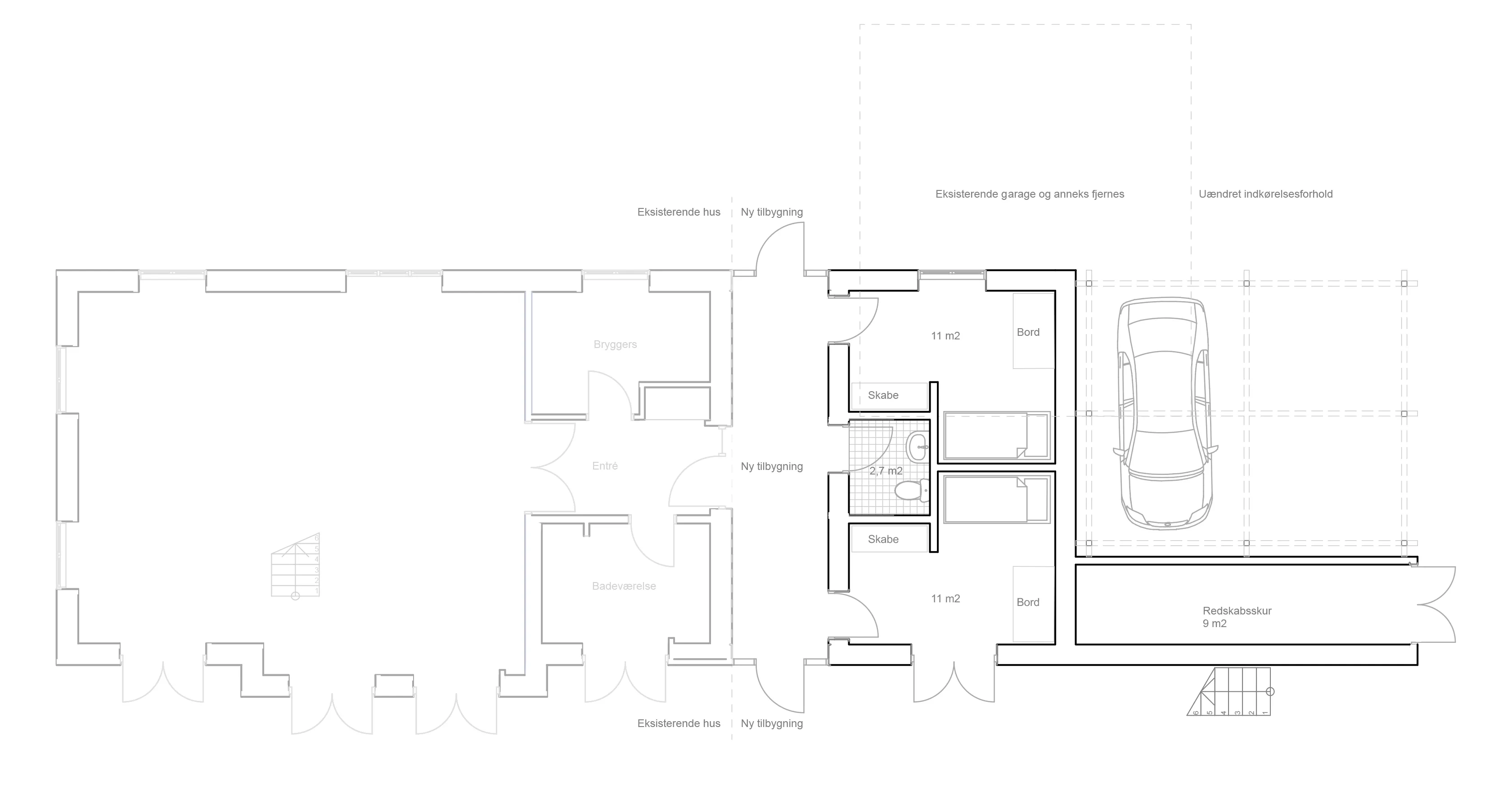
Drømmer du om et anneks ved dit sommerhus? Vi guider dig gennem planlægning, regler og designmuligheder. Få indsigt i byggetilladelse, bebyggelsesprocent og priser. Skab ekstra plads til gæster, hobbyer eller afslapning med en smuk og funktionel tilbygning. Kontakt os for en uforpligtende samtale.
Læs mere
Vi guider dig gennem processen med et skræddersyet skitseforslag. Få overblik over tegninger, 3D-visualisering, økonomi og tidsplan.
Læs mere
Planlægger du et nyt sommerhus? Vi guider dig gennem bygningsreglementet, lokalplaner og andre vigtige regler. Få indsigt i bebyggelsesprocent, byggehøjde, placering i forhold til solen og muligheder for tilbygning og renovering. Kontakt os for professionel rådgivning til dit sommerhusprojekt.
Læs mere